Zum Hauptinhalt springen
Für Einfamilienhäuser oder Doppelhaushälften.
Keine Maklerprovision, keine Grunderwerbsteuer
Maklerprovision und Grunderwerbsteuer werden vom Verkäufer übernommen
Jetzt unverbindlich anfragen!
+49 (0) 172 2434330 · info@geissel.de

Modernste Wohnungen

als Neubau in 2026 zur Vermietung

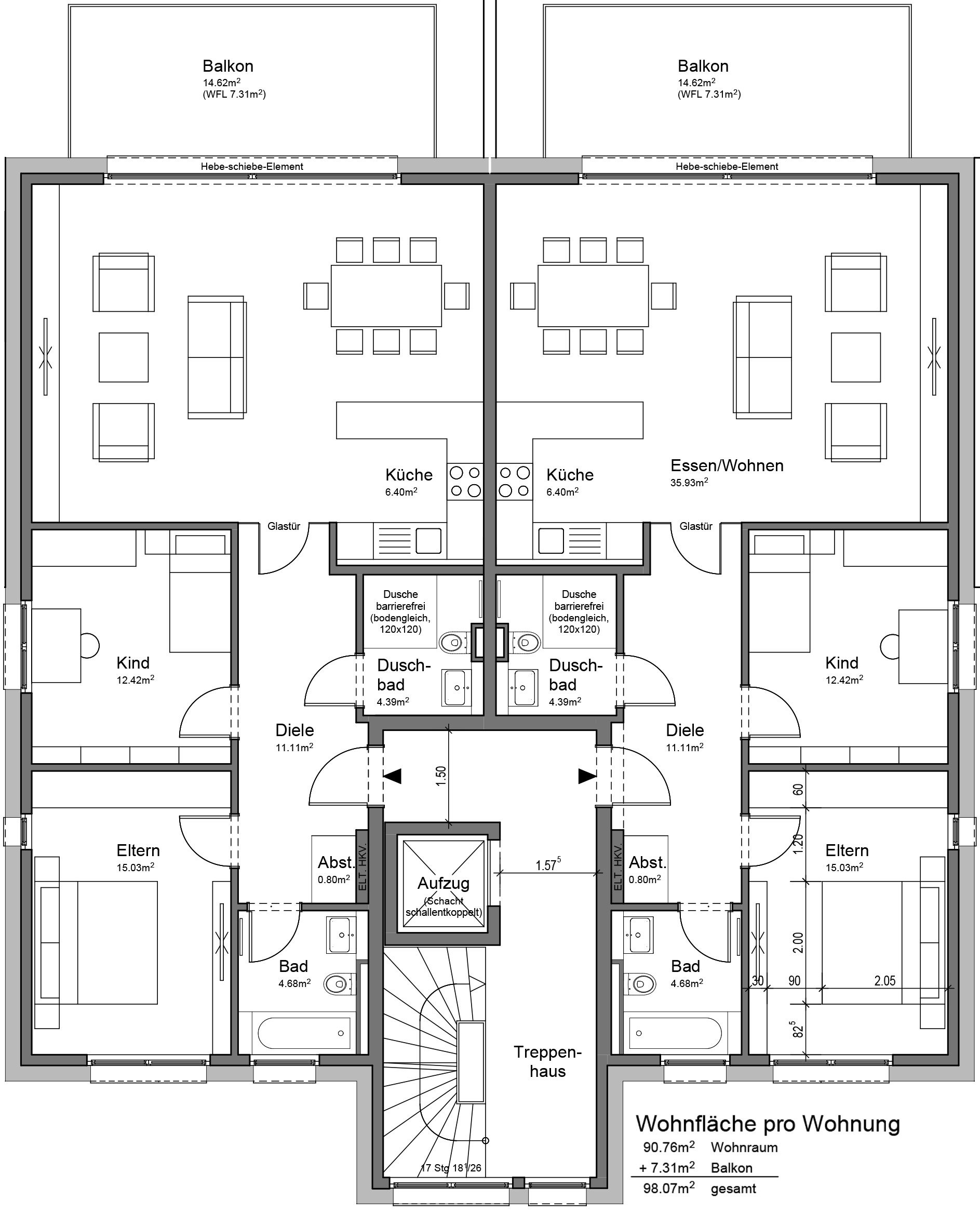
Die Geissel Immobilien GmbH plant derzeit auf den Grundstücken des Gladiolenwegs in Wickrath ein Mehrfamilienhaus mit geräumigen Etagenwohnungen und exklusiven Penthäusern zur Vermietung. Diese werden in höchster Ausstattung und höchster Effizienzklasse errichtet und in 2026 fertig gestellt.

Wohnen mit Aufzug

  • Modernster Baustil
  • Sehr geräumige Wohnungen
  • Mit Aufzug
  • Eigener Stellplatz
  • Terrasse oder Balkon nach Süden ausgerichtet